Mieszkanie na sprzedaż kielce, Kielce, Jagiellońska

3 pokoje
71.00 m²
10 352,11 zł/m2
2 piętro
SCZ-MS-1
Oblicz ratę kredytu

735 000 zł

Mieszkanie na sprzedaż
Bez prowizji

Szczegóły oferty

Symbol oferty SCZ-MS-1
Powierzchnia 71,00 m²
Powierzchnia balkonów/tarasów 15,00 m²
Liczba pokoi 3
Liczba sypialni 3
Rodzaj budynku apartamentowiec
Technologia budowlana beton komórkowy
Standard
Opłaty w czynszu administracja
Opłaty wg liczników gaz
Piętro 2
Liczba pięter w budynku 2
Garaż miejsce parkingowe
Stan lokalu deweloperski
Mies. czynsz admin. 350 PLN
Okna PCV
Instalacje nowe
Balkon taras
Rok budowy 2024
Gaz jest
Woda ciepła - miejska
Dojazd asfalt
Otoczenie zabudowa mieszana
Ogrzewanie centralne
Umeblowanie brak
Winda tak
Liczba wind 1
Tarasy taras duży
Usytuowanie trójstronne
Drzwi antywłamaniowe tak
Pomieszczenia
Podłogi pokoi wylewka betonowa
Typ kuchni aneks
Rodzaj kuchni aneks kuchenny - połączony z salonem
Powierzchnia kuchni 31,57 m2
Podłoga kuchni wylewka betonowa
Typ łazienki razem z wc
Liczba łazienek 1
Powierzchnia łazienki [m2] 5,31 m2
Podłoga łazienki wylewka betonowa
Powierzchnia przedpokoi 8,64 m2
Podłoga przedpokoi wylewka betonowa
Mateusz Rdzanek

Mateusz Rdzanek

Agent Nieruchomości
Nr licencji: 30861

Napisz wiadomość 41 Ofert

Opis nieruchomości

!!!!!!! 0% prowizji od kupującego !!!!!!

SCYZORYK NIERUCHOMOŚCI prezentuje:

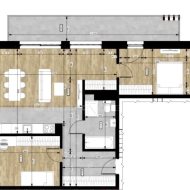
Na sprzedaż NOWY WYJĄTKOWY APARTAMENT Przestronny i nowoczesny o powierzchni 71m2 oraz ogromnym tarasem około 15m2 stan deweloperski
Kameralna Inwestycja  przy ul. Miłej, gdzie znajduje się tylko 7 mieszkań
ZOSTAŁO OSTATNIE WOLNE MIESZKANIE!!

W skład apartamentu wchodzi
- salon połączony z aneksem kuchennym i miejscem na biurko/biblioteczkę/ (pow. 31,57m2) z wyjściem na duży taras (pow.15m2),
- sypialnia (pow. 12,57m2),
- sypialnia (pow.12,27m2)
- łazienka z WC (pow. 5,31m2),
- korytarz (pow. 8,64m2);

Apartament jest trójstronny, widny i przestronny (ekspozycja: południe, zachód, północ); zastosowanie nowoczesnych rozwiązań w postaci drzwi przesuwnych oraz dużych okien 3 szybowych zapewnia ogromny komfort użytkowania. Apartament w stanie developerskim wyposażony w OGRZEWANIE PODŁOGOWE i KLIMATYZACJĘ, drzwi ANTYWŁAMANIOWE, dodatkowo DRZWI TARASOWE PRZESUWNE oraz ROLETY OKIENNE zewnętrze w cenie!

MOŻLWOŚĆ REALZACJI APARTAMENTU POD KLUCZ !!!

Do apartamentu można dodatkowo dokupić
miejsce postojowe w garażu podziemnym w cenie 50 000zł
oraz komórka lokatorskiej w cenie około 10 000zł


ZALETY:
-Kameralny -Tylko 7 mieszkań w całej inwestycji
-przestronny, nowoczesny, duży -  71m2
-przestronny Taras 15m2
-Apartament znajduje się na 2 piętrze
-Apartament ma ekspozycje 3 -stronną ( południe, zachód, północ) idealnie doświetlone
-Ogrzewanie podłogowe w cenie(brak grzejników)
-Klimatyzacja w cenie
- Drzwi antywłamaniowe z atestem
-Przesuwne duże przesuwne drzwi tarasowe
-Rolety okienne zewnętrzne
-Cichobieżną windą
-  może  zostać wykończone POD KLUCZ w standardzie PREMIUM wg najnowszych trendów, w sposób przemyślany (projekt wykonany przez Projektantkę )
- usytuowany w nowej i kameralnej inwestycji nieopodal ul. Miłej gdzie znajduje się tylko 7 mieszkań. Teren wokół budynku będzie zagospodarowany i monitorowany, 
 

Opiekun zlecenia : Mateusz Rdzanek tel: 722 797 977
 

Więcej atrakcyjnych ofert zobaczysz na naszej stronie www.scyzoryk-nieruchomosci.pl
Laureatem Konkursu Orły Nieruchomości GOLD 2025 Laureatem Konkursu Orły Nieruchomości GOLD 2024,Laureatem Konkursu Orły Nieruchomości GOLD 2023,Zostaliśmy Laureatem Konkursu Orły Nieruchomości 2023 Laureatem Konkursu Orły Nieruchomości 2024,Laureatem Konkursu Orły Nieruchomości 2025.

Dlaczego warto u nas kupić nieruchomość:
* Jesteśmy sprawdzonym biurem nieruchomości skupiającym się na rynku Świętokrzyskim, nazwa Scyzoryk zobowiązuje:)
* Mamy na koncie setki sfinalizowanych z sukcesem transakcji można poczytać opinie na Internecie.
* Pomagamy w negocjacjach ceny adekwatnej do wartości rynkowej.
* Tworzymy umowy przedwstępne zabezpieczające obie strony transakcji;
* Opiekun oferty poprowadzi Cię przez wszystkie etapy transakcji szybko i bezpiecznie,
* Sprawdzamy nieruchomość pod względem prawnym, co zdejmuje z klienta ryzyko kupienia kota w worku;)
* Służymy wsparciem najlepszych ekspertów w otrzymaniu najkorzystniejszych warunków kredytowania nieruchomości oraz jej ubezpieczenia, a formalności ograniczone są do minimum
* Na zlecenie naszych klientów wyszukujemy unikalnych odpowiadających ich oczekiwaniom ofert,
* Każda transakcja objęta jest ochroną ubezpieczenia, co zdejmuje z klienta ryzyko poniesienia straty finansowej.
*Współpracujemy z kancelarią notarialną, która specjalnie dla naszych klientów oferuje preferencyjne stawki za akty notarialne
*Bierzemy na siebie dostarczenie i sprawdzenie całej dokumentacji potrzebnej do przeniesienia własności na nowego właściciela


Niniejsze ogłoszenie nie stanowi oferty w rozumieniu Kodeksu Cywilnego, a dane w nim zawarte mają charakter jedynie informacyjny i mogą ulec zmianie.

Lokalizacja nieruchomości

Kalkulatory

Kalkulator kredytowy

Wysokość raty

PLN
%

Kalkulator kosztów

Taksa notarialna
(opłata notarialna)

Wniosek o wpis do KW

VAT od prowizji
agencji nieruchomości

VAT od taksy notarialnej
(opłaty notarialnej)

Prowizja agencji nieruchomości

Wypisy aktu notarialnego

Razem

Uwaga: mogą wystąpić dodatkowe opłaty za założenie księgi wieczystej oraz ustanowienie hipoteki.

PLN
PLN
PLN
PLN
PLN
%
PLN

Podobne oferty

Oferta specjalna

Mieszkanie na sprzedaż

Kielce

2 pokoje 73 m2 7 710,34 zł/m2
Oferta specjalna
Bez prowizji

Mieszkanie na sprzedaż

kielce

3 pokoje 59 m2 12 994,92 zł/m2
Bez prowizji
Oferta specjalna

Mieszkanie na sprzedaż

KIELCE, kielce

3 pokoje 63 m2 8 880,00 zł/m2
Oferta specjalna
Oferta specjalna

Mieszkanie na sprzedaż

Kielce

3 pokoje 64 m2 8 109,38 zł/m2
Oferta specjalna

Agent Nieruchomości

Proszę wprowadzić poprawne imię i nazwisko
Proszę wprowadzić poprawny numer telefonu
Proszę wprowadzić poprawny adres e-mail
Proszę zaznaczyć wymagane zgody
Rozwiąż równanie:
12 6
Niepoprawny wynik